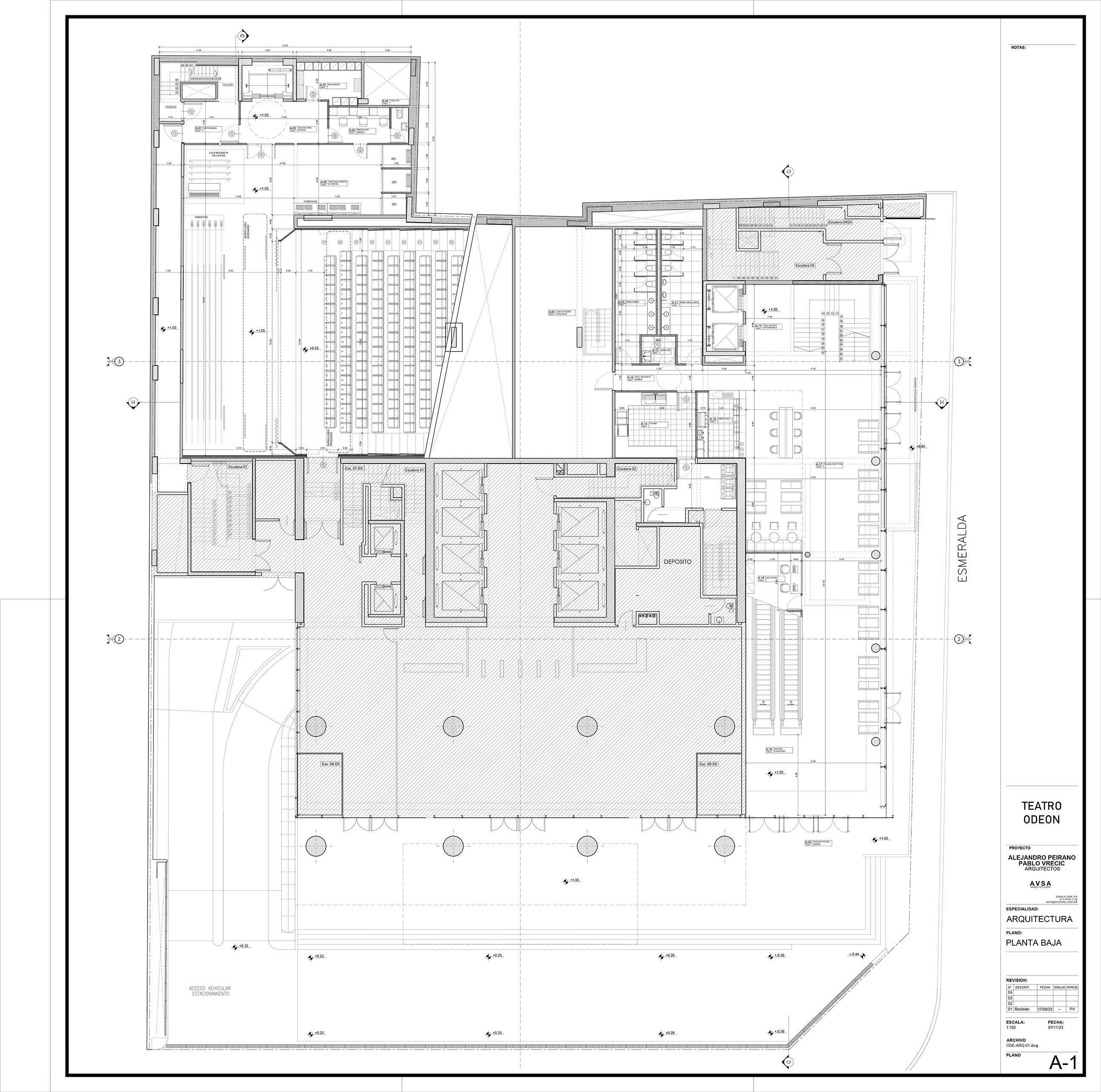
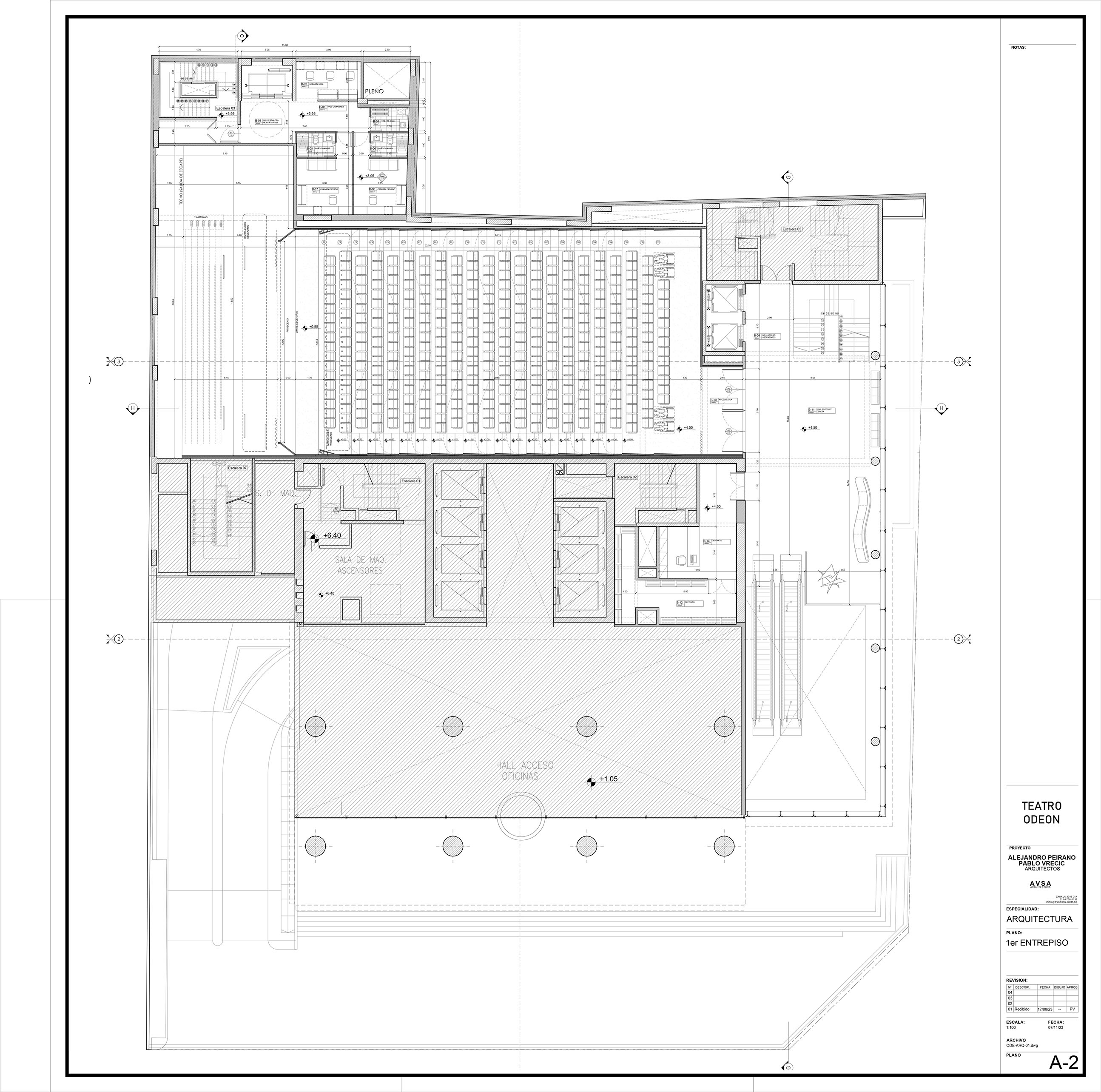
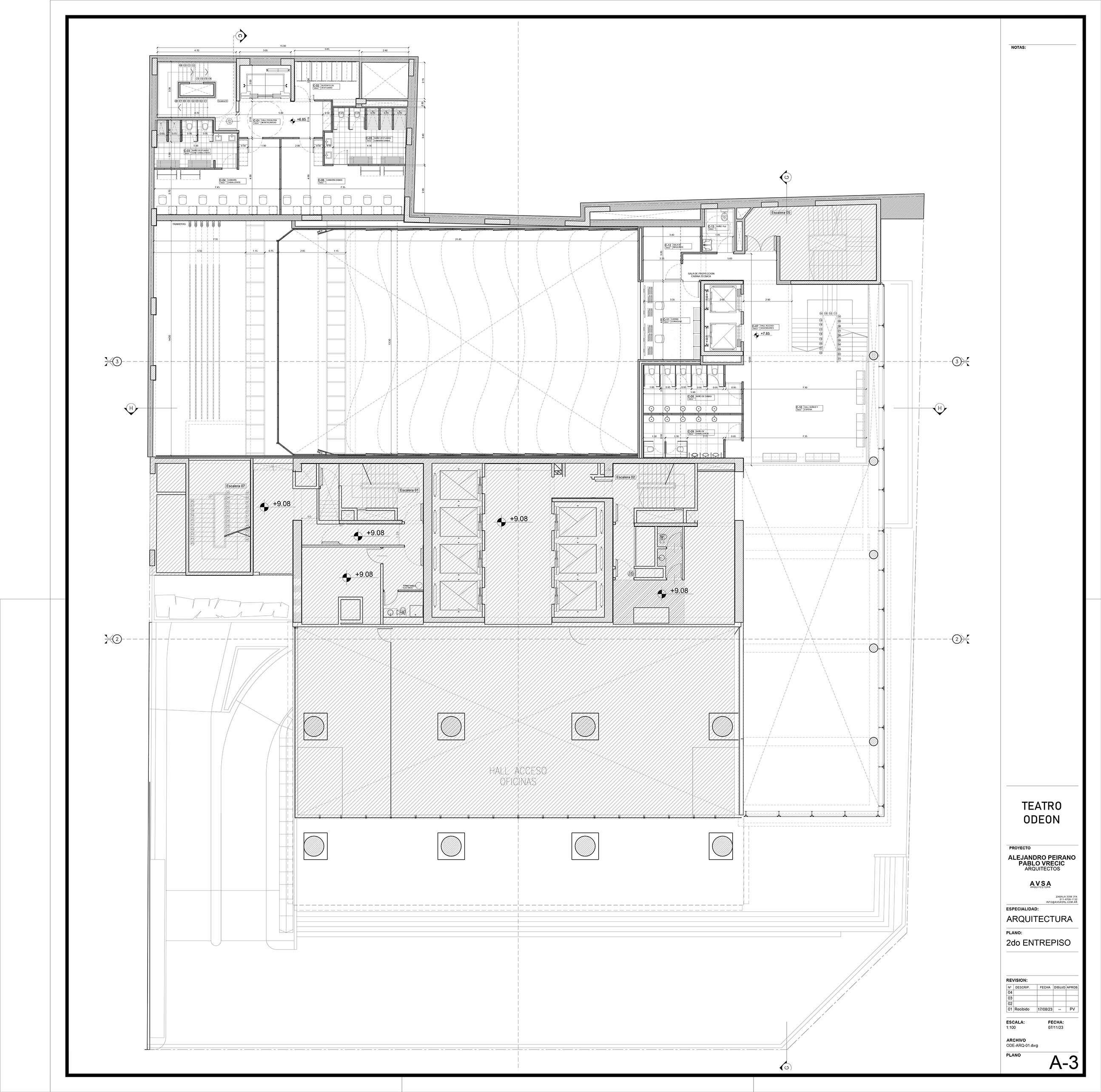
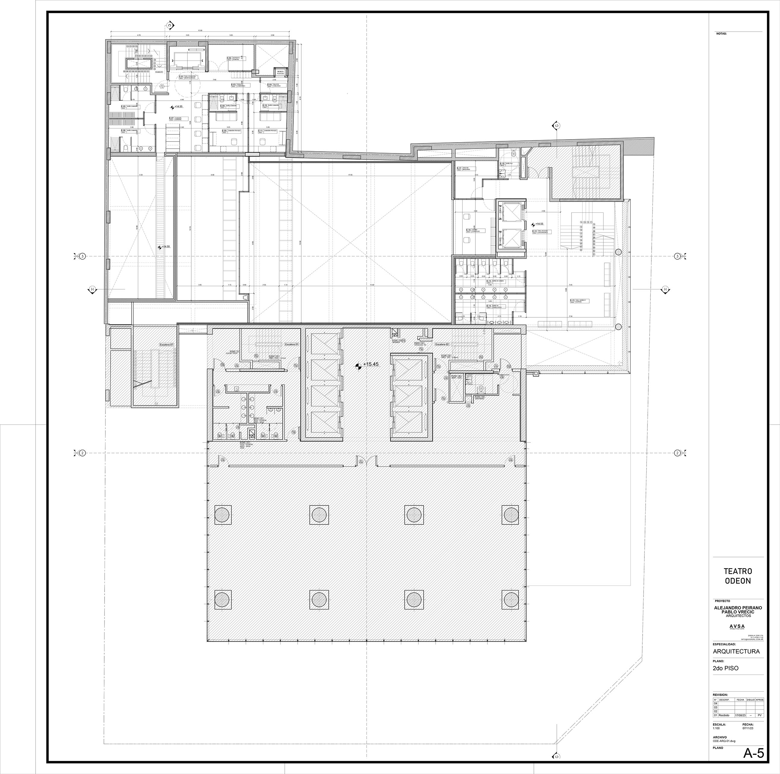
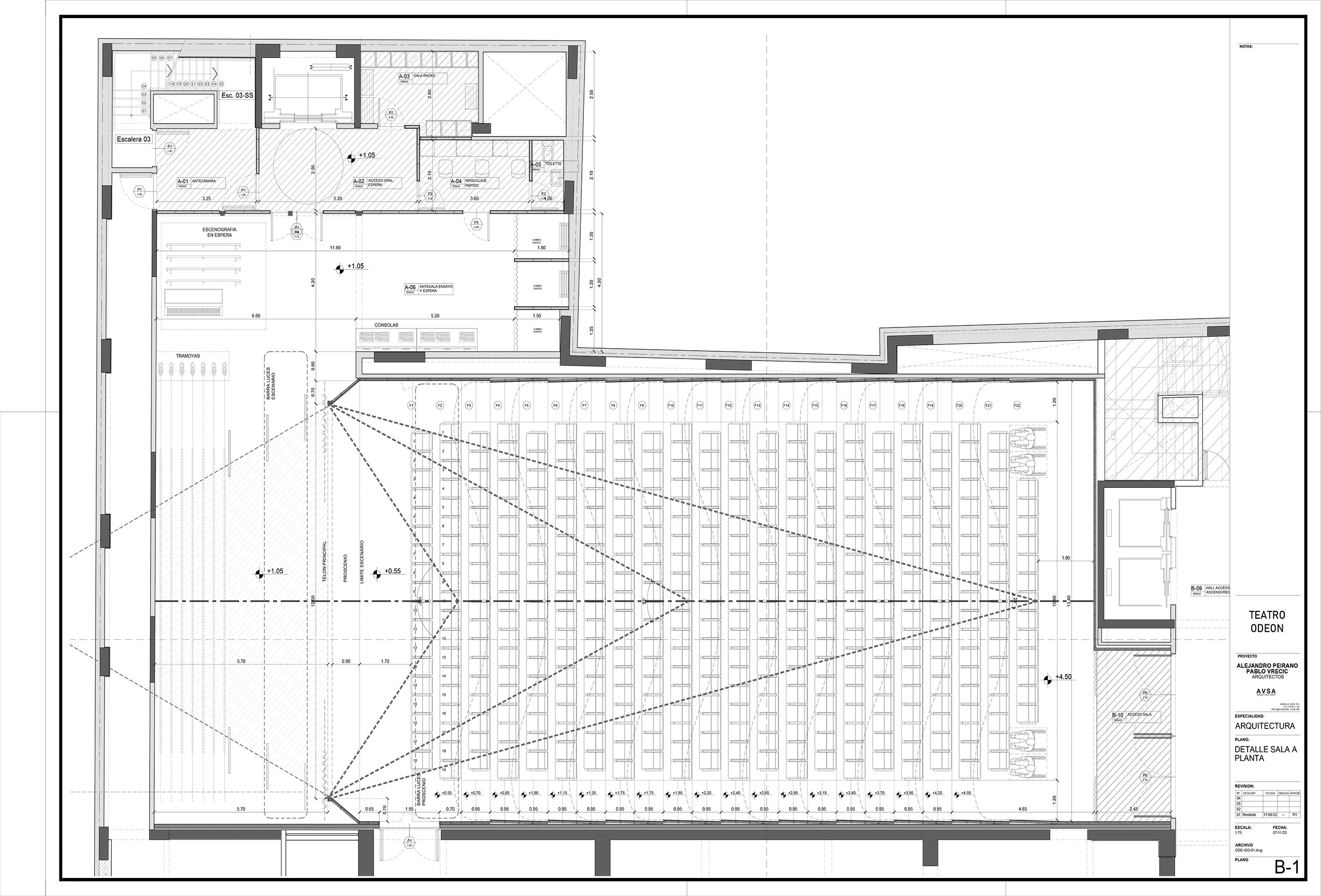
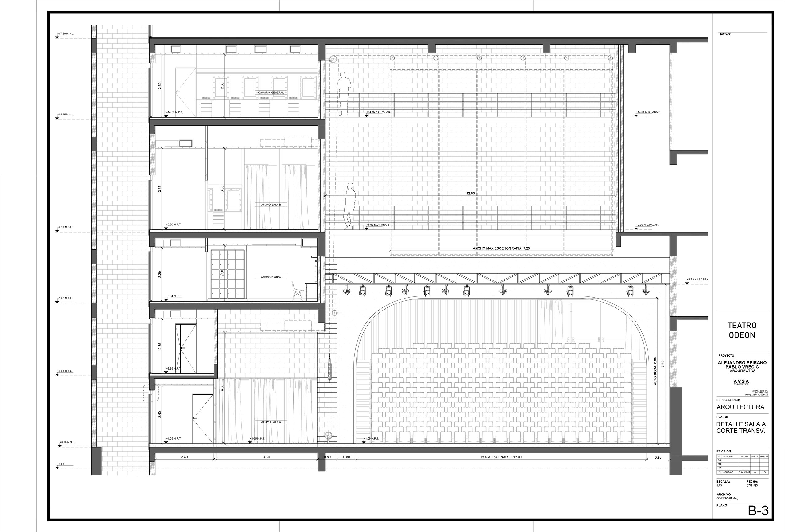
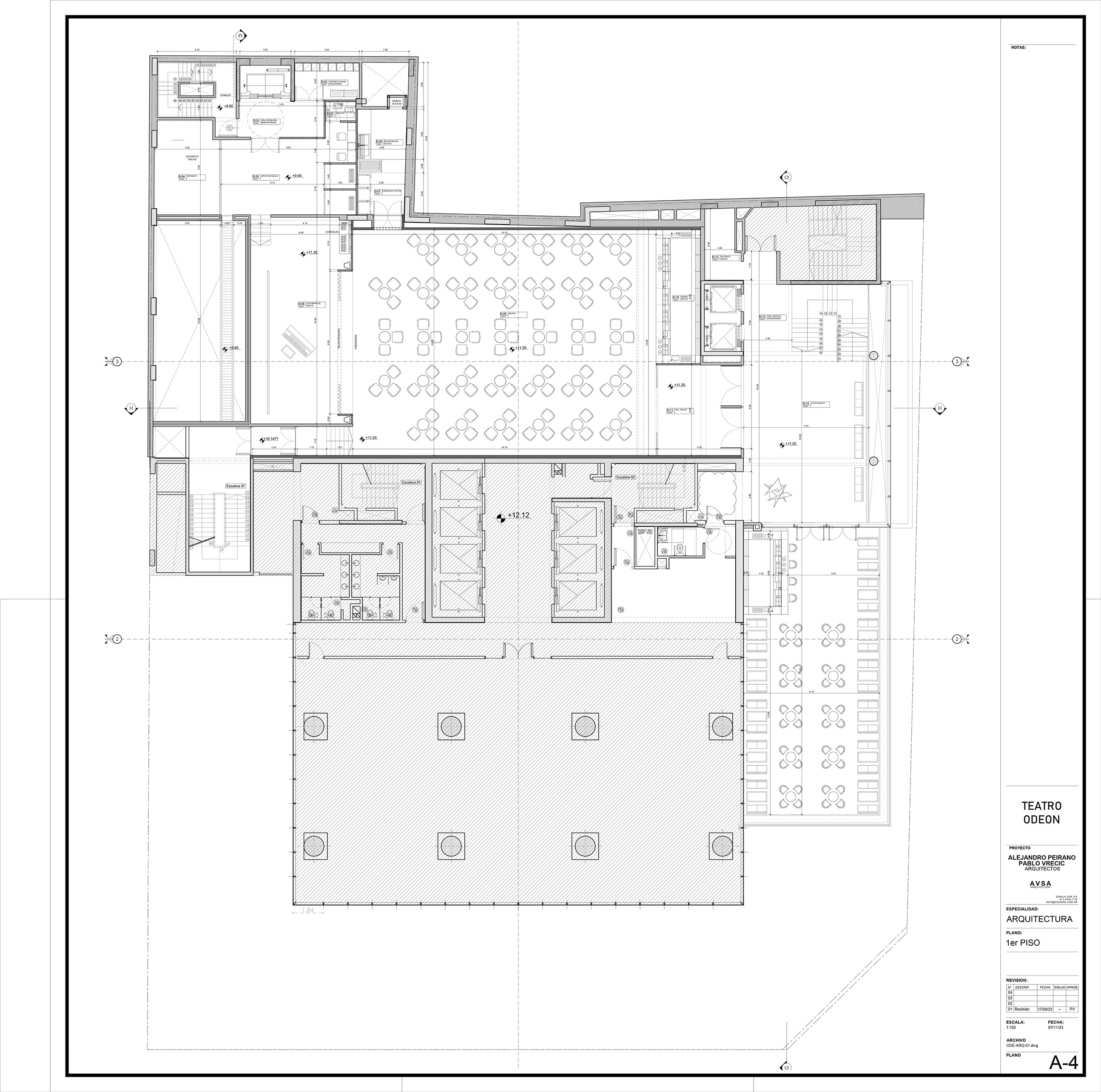
TEATRO ODEON

2023-2024
Proyecto y Dirección


Arq. Alejandro Peirano - Laura Peirano - Arq. Pablo Vrecic

Equipo:
Arq. Federico Barbona - Arq. Luna Torres - Agustin Labajian

Mobirise Website Builder
Mobirise Website Builder
Mobirise Website Builder
Mobirise Website Builder
Mobirise Website Builder
Mobirise Website Builder